Zuzu
Jun 2025
Designer, ICRAVE
GC, Dowdle
Scope: Every SINGLE thing
With four restaurant leases already signed in Nashville, Zuzu marks the Elia Group’s first local opening—and their boldest. Originally launched in Detroit, the team wanted their signature concept to land in Tennessee with intention and precision. To do that, they hired Mesa directly, trusting us to carry their flagship’s identity into a new frontier.
We flew to Detroit to walk the original space with the owners, understand the flow, materials, and details firsthand, and build the kind of relationship this level of work requires. From there, we took the reins on fabrication, while local heavyweights Dowdle Construction led the mechanical and shell scope.
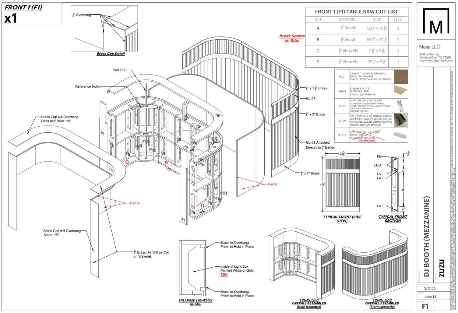
Designed by NYC-based ICRAVE, Zuzu is easily the most complex and boundary-pushing project we’ve ever taken on. The design is immersive—floor-to-ceiling elegance with no detail or expense spared. (When will we ever say that again?)
Every detail pushed our team further. We built vast light fixtures from scratch and a bar from the ground up, including a dramatic stretch of vertical stone connecting the two floors. Curved banquettes, reeded glass PDR doors, glass chandelier elements forming a DJ booth, and custom tables throughout the space—nothing was standard.
The result is bold, layered, and deeply considered—just like the food being served.


























